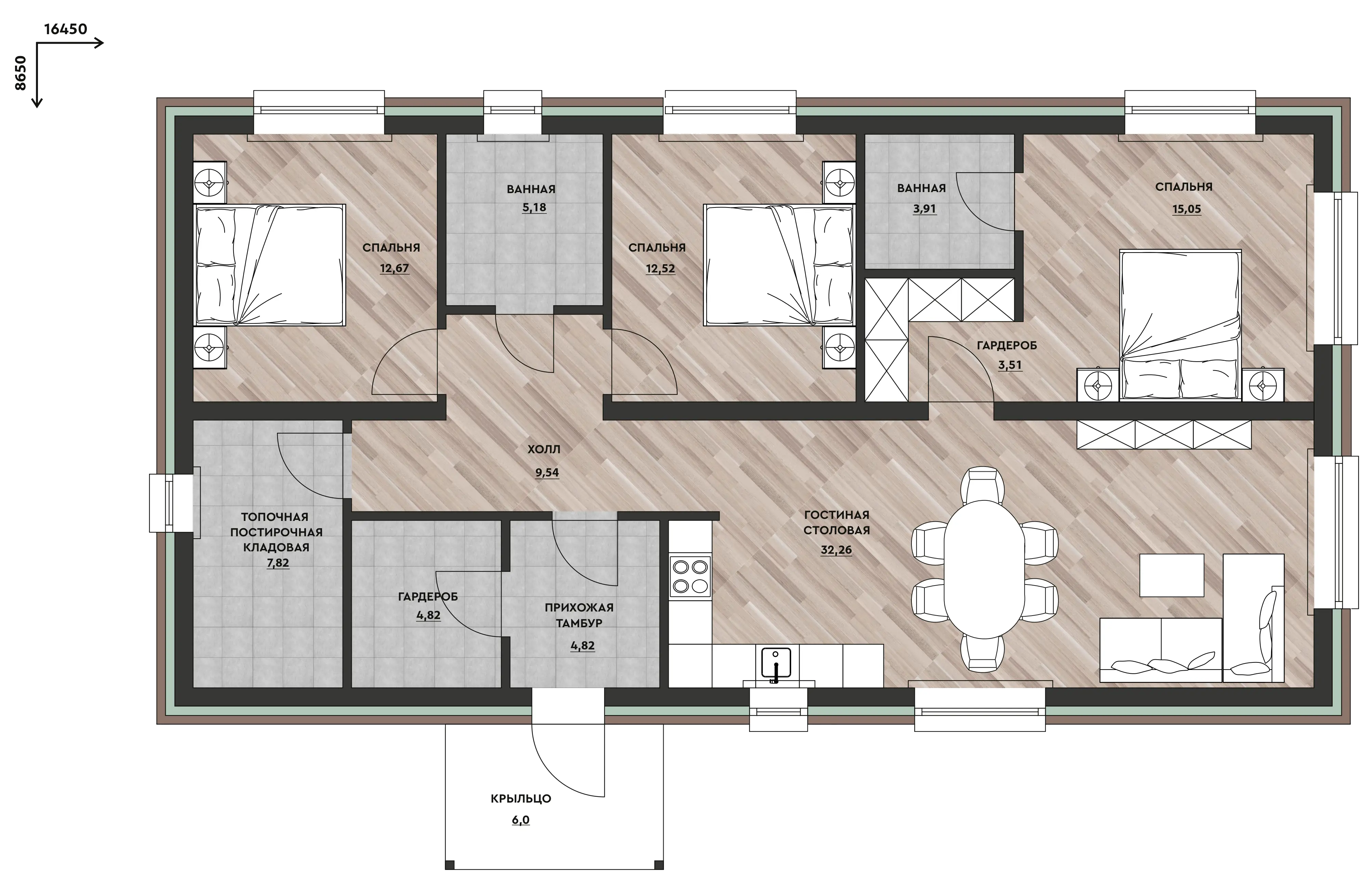
экспликация помещений
Габариты дома: 16,45 х 8,65m
- ванная:
5,18m2
- ванная:
3,91m2
- холл:
9,54m2
- гостиная:
32,26m2
- спальня:
12,67m2
- спальня:
12,52m2
- спальня:
15,05m2
- гардероб:
4,82m2
- гардероб:
3,51m2
- тамбур:
4,82m2
- кладовая:
7,82m2
ИТОГО 1 этаж:
112,1m2
КОМПЛЕКТАЦИЯ ДОМОВЛАДЕНИЯ
- Фундамент - свайно-ростверковый
- Перекрытия - ЖБ плиты
- Стены - керамический блок 380 мм, Климаблок
- Фасад - облицовочный кирпич или мокрый фасад, планкен
- Кровля – металлочерепица
- Водосточная система и снегозадержатели – металлические
- Подшив кровли – пластик с перфорацией
- Окна – ПВХ профиль пятикамерный
- Дверь входная – с терморазрывом и остеклением
БЛАГОУСТРОЙСТВО ДОМОВЛАДЕНИЯ
- Отмостка – подъезд, гараж
- Подъезд в гараж - бетон
- Газон - с автополивом
- Септик - Евролос Эко
- Забор - высота по фасадной части 1,5м, по периметру 1,7м
- Подводка коммуникаций - подземная (вода, газ, электричество, интернет)
Спасибо за заявку!
В ближайшее время с Вами свяжется наш менеджер.